- Appartement ski aux pieds, terrasse, parking, 8 pers, Alpe d'Huez - FR-1-645-96L'Alpe-d'Huez
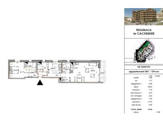
- Homency - Résidence Cachemire A301L'Alpe-d'Huez
- Studio centre station à deux pas des pistes!Huez
- Homency - Résidence Cachemire A402L'Alpe-d'Huez
- Appartement 3 ch. skis aux pieds à l'Alpe d'Huez - FR-1-645-94L'Alpe-d'Huez
- Homency - Résidence Cachemire A203L'Alpe-d'Huez
- Chez Annie- 2 Chambres avec garage sous terrainL'Alpe-d'Huez
- Chalet Le TanguyVillard-Reculas
- Homency - Chalet IsbaL'Alpe-d'Huez
- Marmottes 19 Superbe Appt 3Villard-Reculas
- Fin des résultats -